Coastal Living at Its Best - Gardener Included!!
FOR LEASE
AVAILABLE NOW
$750 per week
$3259 security bond
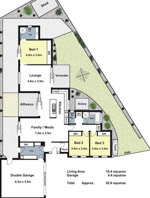
Tucked away in a quiet court setting, this beautifully renovated three-bedroom home delivers the relaxed Peninsula lifestyle you’ve been looking for with nothing to do but move in and enjoy. The heart of the home is the stunning updated kitchen, featuring stone benchtops, quality cabinetry, subway tile splashback, stainless steel appliances including gas cooking, dishwasher, and a generous breakfast bar perfect for casual meals. It flows seamlessly into the open-plan family and meals area, warmed by rich timber-look flooring throughout the living spaces. A separate lounge room provides a second living zone ideal for a quiet retreat or movie nights while the dedicated dining space comfortably seats the whole family. Ducted heating and split-system cooling ensure year-round comfort. The generous master bedroom features built-in robes, a ceiling fan, sliding door access to the side garden, and its own ensuite with a large vanity benchtop, and walk-in shower. Bedrooms two and three are well-proportioned with built-in robes, plantation shutters, and plush carpet perfect for kids or a home office setup. The central bathroom offers a separate shower and bathtub, with a stone vessel basin adding a stylish touch. Step outside to the covered alfresco area a brilliant spot for entertaining with painted brick walls and direct access from the kitchen. Beyond, the landscaped rear yard features a neat lawn, established garden beds, and a paved outdoor dining area under the verandah. Side access with stepping stones and raised garden beds adds to the property’s charm. Additional features include a double remote garage with internal access and laundry, a storage room, water tank, and a large concrete driveway with ample off-street parking. Perfectly positioned in Capel Sound, you’re moments from the beautiful Port Phillip Bay foreshore, local shops along Point Nepean Road, Rosebud Plaza, schools, sporting facilities, and everything the Mornington Peninsula has to offer.

